
廣西南寧巨緣合工程機械公司新辦公樓設計裝修工程案例
面積:560平
風格:現代簡約
價格:41.3萬
發布日期:2021-06-18
簡介
項目標簽
▼項目信息:廣西南寧巨緣合工程機械公司新辦公樓設計裝修
▼項目位置:廣西南寧
▼項目類型:辦公樓
▼項目面積:560㎡
▼設計公司:燦源裝飾
▼主案設計師:胡錦程
以機械器材銷售為主的廣西南寧巨緣合工程機械公司計劃在南寧市研祥智谷工業園打造一處屬于自己的全新辦公樓。業主與設計師溝通的過程十分的簡單,旨在需要滿足 50人的日常辦公與休憩需求,所以“簡約,實用”成為了本次辦公樓裝飾工程設計的主題。
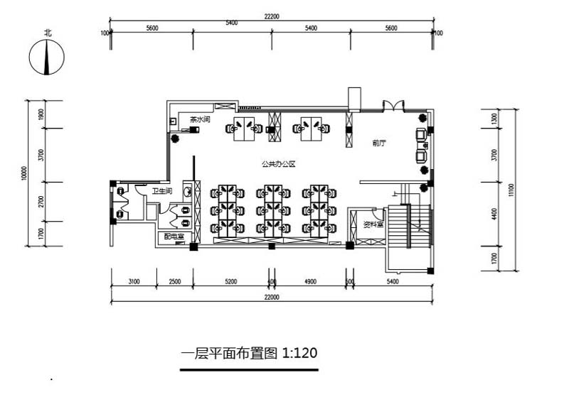
該建筑分為兩個部分,一樓和二樓是主要用于日常辦公的空間,三樓靈活的會議空間與休閑用活動墻區分開來,半室外庭院式的陽臺也被收納休閑區中。而每層設計相同的主動線,為整個工作帶來極大的便捷。



該項目將兩個相鄰的聯排別墅型的辦公樓改造成團隊的新工作場所。建筑風格的基礎和靈感主要來源于包豪斯美學——簡潔的形式、功利主義的方法和功能主義,F在設計師把這種美學運用到室內設計中,打造出一個適用于部門職能間要求,兼具相對獨立性和員工間溝通協作性的辦公空間。室內采用大量的原木色的木材,并加入了有光澤元素的地面和吊頂材料和極具通透性的玻璃隔斷,與空間中的其它設計元素形成了一個視覺開闊的整體。
一樓大面積地運用胡桃木色的面板和白色吊頂與地面意在提供了一種冷靜理智情緒的美學,也與外墻形成一個充滿協調性的主體。員工通過主動線即可輕松與其它人進行溝通,有效提升了溝通與工作的效率。設計方案保留了原有的大落地窗和采用磨砂玻璃隔斷,這些保證了足夠的光照,給予空間最大的通透性。

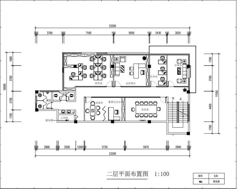
二樓是主要部門的辦公區域,由于各部門的職能不同,要求部門間保持相對的獨立性。為了滿足這一要求,設計師在通道采用半磨砂玻璃推拉門來進行整個空間的劃分,最大限度地保持整個空間的通透性與私密性。柔和的吊頂燈帶和經過半磨砂玻璃的處理后的光照保證了整個通道溫柔的光感,并與安靜的工作氛圍結合帶來“寧靜致遠”空間意味。
集辦公與待客為一體的經理辦公室通常是設計里的重頭戲。設計師對此采用紋理清晰的深胡桃木桌面、大氣舒適的皮質沙發、極具金屬感的裝飾與五金配件、大面積的暖白色地面與窗簾,這幾種元素相互交替著給使用者塑造一個穩重專業的商業空間。

非常值得一提的是三樓的會議室與休閑區之間的隔斷——一扇可折疊的吸音板墻。為了給使用者提供一個靈活開闊的空間,設計師巧妙的將會議室和休閑區用這扇吸音板墻隔開,這扇墻不僅作為會議室的入口,也起到了會議室隔斷的作用。設計師利用具有吸音特質的木板,給會議室提供相對安靜的空間。在中國,公司的許多例會通常與團建活動相結合,這樣一扇可自由折疊的墻面為此提供的開闊的場地,這種設計方法創造了有機的結構,同時強調了空間的運動和流動性。休息區一方面擺放了可供員工娛樂與放松的健身器材,另一方面設置了禪意花園般的半室外庭院式陽臺,這些都是為了促進員工之間情感,增加他們對工作環境的歸屬感。大范圍地采用柔光吸頂燈與大面積的落地窗和紗質窗簾,旨在給整個空間提供貼合自然的光線感受。除此之外,同為原木色的運用,但該層的色調是較一二層而言就輕快許多的淺胡桃木,這樣的色彩選擇為該層奠定了舒緩放松的基調,正如設計師說“空間色彩與光照是緩解工作壓力的必要手段!边@樣新的工作環境也闡述了公司對員工健康生活健康工作的關注。
巨緣合工程機械公司的整體辦公樓設計裝修由始至終都貫穿著“簡約·、實用”的原則,無論是從風格設計還是空間的劃分上,都盡可能的為整個辦公需求提供可持續化的生命力。在滿足客戶需求的同時,努力延伸和保證客戶未來的使用感受,“想客戶之所想,急客戶之所急”是燦源公司裝修設計的主要追求之一。





